BIRTH HOME

FROM ¥10mill1000万円台からのデザイン住宅

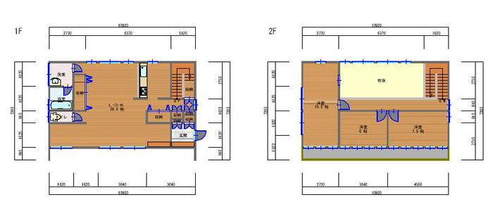
No.7

シンプルなボックス型の建物に凹みをつけてバルコニーと軒下空間をつくり、陰影のある彫りの深い外観とし、濃い紺色の金属サイディングで、シャープな表情をつくりました。
プランは、リビングにパブリック性をもたせた欧米型の計画で、吹抜けを通じて2階の子供部屋の気配を1階のリビングから感じ取れるようになっています。帰宅した家族が2階の個室へ行くのに必ずリビングを通る「ただいま動線」も確保しています。

■特徴:吹き抜け
■テイスト:シンプルモダン

東玄関(南寄り) 2階建 1世帯住宅 LDK3室

BIRTH HOME
ABOUT US

バースの家づくりはお施主様に合ったお施主様だけのデザインにこだわる事です。
『安心・安全・健康』でお客様から誇れるこだわりのあるデザインを探し続ける…

それが私たちバースホームの建築です。

BIRTH HOME

〒990-0014 山形市滑川436
TEL:023-629-3530 / FAX:023-629-3538
営業時間 9:00~18:00
定休日 日・祭日